Verkocht
Verkocht: Volmarijnstraat 108B, 3021 XW Rotterdam
Beschrijving
Deze fantastische benedenwoning onderscheidt zich direct door de bijzondere indeling in drie niveaus, wat zorgt voor een speels en ruimtelijk effect. De indeling biedt volop mogelijkheden, zo is er een mogelijkheid een royale woonkamer, een sfeervolle eetkamer en maar liefst drie comfortabele slaapkamers te creëren.Daarnaast is er een fijne tuin op het zuiden, een heerlijke plek om een groene oase te realiseren en volop van de zon te genieten. Energielabel A!
De ligging is werkelijk ideaal.
Gelegen aan een prachtige straat met historische gevels, veel groen en direct aan de statige Heemraadssingel, woon je hier in alle rust en charme, terwijl het levendige stadsleven binnen handbereik ligt.
Op loopafstand vind je de bruisende Nieuwe Binnenweg met een breed aanbod aan winkels, supermarkten, koffiebars en restaurants. Geniet van een goede kop koffie bij UEB, een gezellige borrel bij Café Stein of een heerlijk diner bij Bakeliet of Rijke & De Wit. Ook het centrum van Rotterdam bereik je eenvoudig te voet. Bovendien zijn tram- en metrohaltes dichtbij en zijn de uitvalswegen richting de A13 en A20 snel bereikbaar.
Indeling
Begane grond
Via de voordeur betreed je een open en lichte ruimte met een groot raam aan de voorzijde en een indrukwekkende plafondhoogte. Het loftachtige karakter geeft een gevoel van vrijheid en ruimte. Vanuit hier is er een trap naar boven en een klein trapje naar het lagere niveau. Alle wanden zijn strak en recent geschilderd.
Het lagere gedeelte leent zich perfect voor een gezellige zithoek of een ruime eetkamer en staat in open verbinding met de keuken. De keuken biedt toegang tot de zonnige achtertuin op het zuiden.
Beneden is een slaapkamer en een hal met toegang tot de eerste badkamer en een separaat toilet. De badkamer is netjes uitgevoerd en voorzien van een inloopdouche en wastafel.
De tuin biedt volop potentie en kan met wat aandacht worden omgetoverd tot een heerlijke, groene buitenruimte waar je in alle rust kunt ontspannen.
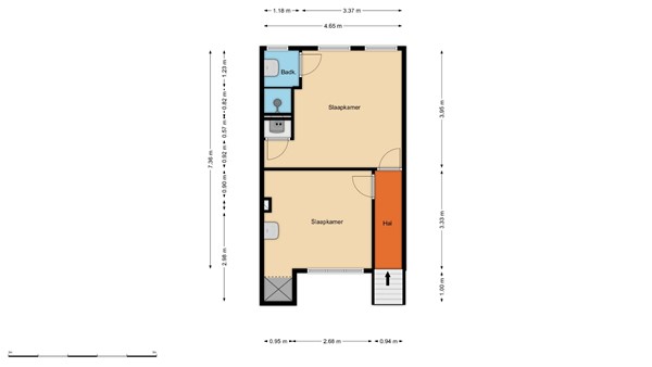
Verdieping
De overloop geeft toegang tot twee ruime slaapkamers. Eén van de kamers beschikt over directe toegang tot de tweede badkamer, die eveneens is voorzien van een inloopdouche en wastafel. Daarnaast is er een praktische vaste kast met de CV-ketel. De tweede slaapkamer heeft een eigen wastafel en geniet van veel lichtinval dankzij de grote interne raampartij aan de voorzijde.
Kortom: een karaktervolle, lichte en veelzijdige woning op een toplocatie, perfect voor wie ruim en sfeervol wil wonen in de stad!
Afmetingen
Begane grond ca. 55 m²
Verdieping ca. 34 m²
Totale woonoppervlakte ca. 89 m²
Tuin ca. 22,5 m²
Bijzonderheden
Eigen grond, bouwjaar 1896, energielabel A, houten en kunststof kozijnen met dubbele beglazing, volledig geïsoleerd, verwarming en warm water middels CV-combiketel, VvE is actief met een maandelijkse bijdrage van €161,40. oplevering in overleg.
Bezichtigingsafspraak
Maak direct een afspraak om deze fantastische benedenwoning met fijne achtertuin te bezichtigen!
* De gegeven informatie is met zorgvuldigheid opgesteld, aan de juistheid kunnen echter geen rechten worden ontleend. Alle verstrekte informatie moet beschouwd worden als een uitnodiging tot het doen van een aanbod of om in onderhandeling te treden.
Kenmerken
| Overdracht | |
|---|---|
| Referentienummer | 00599 |
| Vraagprijs | € 450.000,- k.k. |
| Servicekosten | € 161,40 |
| Status | Verkocht |
| Aanvaarding | In overleg |
| Aangeboden sinds | Vrijdag 27 maart 2026 |
| Laatste wijziging | Vrijdag 22 mei 2026 |
| Bouw | |
|---|---|
| Type object | Appartement, benedenwoning |
| Woonlaag | 1e woonlaag |
| Soort bouw | Bestaande bouw |
| Bouwperiode | 1896 |
| Isolatievormen | Dubbel glas Volledig geïsoleerd |
| Oppervlaktes en inhoud | |
|---|---|
| Woonoppervlakte | 89,2 m² |
| Woonkameroppervlakte | 29,92 m² |
| Inhoud | 397 m³ |
| Indeling | |
|---|---|
| Aantal bouwlagen | 2 |
| Aantal kamers | 5 (waarvan 3 slaapkamers) |
| Aantal badkamers | 2 (en 1 apart toilet) |
| Locatie | |
|---|---|
| Ligging | Aan rustige weg Dichtbij openbaar vervoer In woonwijk Nabij school Nabij snelweg |
| Tuin | |
|---|---|
| Type | Achtertuin |
| Oriëntering | Zuiden |
| Staat | Dient nog te worden aangelegd. |
| Energieverbruik | |
|---|---|
| Energielabel | A |
| CV ketel | |
|---|---|
| Warmtebron | Gas |
| Combiketel | Ja |
| Eigendom | Eigendom |
| Uitrusting | |
|---|---|
| Warm water | CV-ketel |
| Verwarmingssysteem | Centrale verwarming |
| Badkamervoorzieningen Badkamer 1 | Inloopdouche Wastafel |
| Badkamervoorzieningen Badkamer 2 | Inloopdouche Wastafel |
| Tuin aanwezig | Ja |
| Vereniging van Eigenaren | |
|---|---|
| Ingeschreven bij de KvK | Ja |
| Periodieke bijdrage | Ja |
| Reservefonds | Ja |
| Opstal verzekering | Ja |
| Kadastrale gegevens | |
|---|---|
| Kadastrale aanduiding | Delfshaven C 5272 |
| Omvang | Appartementsrecht of complex |
| Eigendomsituatie | Eigen grond |
| Indexnummer | 1 |