Onder bod
Beschrijving
In het geliefde Nieuwe Westen mogen wij deze charmante bovenwoning aanbieden. De woning is gelegen op de eerste verdieping van een prachtig authentiek pand en ligt in een sfeervolle straat met prachtige, karakteristieke gevels, wat direct zorgt voor een prettige woonomgeving.De ligging is werkelijk ideaal. Op loopafstand bevindt zich het groene en statige park aan de Heemraadssingel, terwijl ook het bruisende centrum van Rotterdam snel en eenvoudig te bereiken is. Openbaar vervoer, diverse uitvalswegen (A13 en A20) en een breed aanbod aan voorzieningen zoals winkels, (sport)scholen en zwembaden zijn allemaal binnen handbereik. Daarnaast ligt de monumentale entree van Diergaarde Blijdorp letterlijk om de hoek.
Indeling
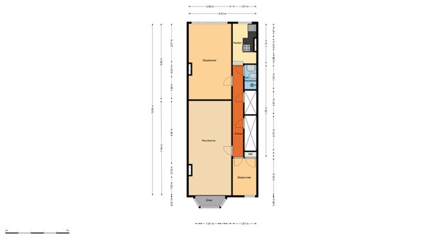
Via de gemeenschappelijke entree bereikt u de trapopgang naar uw eigen voordeur op de eerste verdieping. Vanuit de hal, die toegang biedt tot vrijwel alle vertrekken, ervaart u direct de prettige indeling van deze woning.
De woonkamer aan de voorzijde is een heerlijke, lichte leefruimte dankzij de charmante erker die zorgt voor extra sfeer en een prachtige lichtinval. Doordat de ruimte oorspronkelijk was verdeeld in een voor- en tussenkamer, geniet u nu van een royale woonkamer met volop mogelijkheden voor het creëren van een comfortabele zit- en eetkamer.
De keuken is gelegen aan de achterzijde en biedt via het grote raam een leuk en vrij uitzicht over de binnentuinen, een fijne plek om te koken met een groene blik naar buiten.
Ook aan de achterzijde bevindt zich een ruime kamer met een grote raampartij, waardoor het een aangename, lichte ruimte is. Ideaal als slaapkamer, werkkamer of hobbyruimte.
De badkamer is praktisch ingericht en beschikt over een inloopdouche, toilet en wastafel.
Tot slot is er aan de voorzijde nog een extra slaapkamer, perfect als logeerkamer, kinderkamer of thuiskantoor.
Kortom: een sfeervolle en lichte woning met een fijne indeling en volop mogelijkheden!
Afmetingen
Totale woonoppervlakte ca. 67m2
Bent u op zoek naar een woning in de buurt van de stad maar wel in een rustige, brede straat met veel groen en de Heemraadssingel als ‘achtertuin’? Het centrum van Rotterdam is aan te lopen of te fietsen. Winkelen kunt u in de winkelstraten Vierambachtsstraat, 1e Middellandstraat en de Nieuwe Binnenweg, allen nabij gelegen.
Bijzonderheden
Eigen grond, bouwjaar 1916, volledig voorzien van kunstof kozijnen met dubbel glas, Energielabel E. Verwarming en warm water middels CV-combiketel . Onder voorbehoud van splitsing, VvE in oprichting. Oplevering in overleg.
Bezichtigingsafspraak
Maak direct een afspraak om deze fijne bovenwoning te bezichtigen!
De gegeven informatie is met zorgvuldigheid opgesteld, aan de juistheid kunnen echter geen rechten worden ontleend. Alle verstrekte informatie moet beschouwd worden als een uitnodiging tot het doen van een aanbod of om in onderhandeling te treden.
Kenmerken
| Overdracht | |
|---|---|
| Referentienummer | 00591 |
| Vraagprijs | € 295.000,- k.k. |
| Status | Onder bod |
| Aanvaarding | In overleg |
| Aangeboden sinds | Woensdag 11 februari 2026 |
| Laatste wijziging | Vrijdag 22 mei 2026 |
| Bouw | |
|---|---|
| Type object | Appartement, bovenwoning |
| Woonlaag | 1e woonlaag |
| Soort bouw | Bestaande bouw |
| Bouwperiode | 1916 |
| Dakbedekking | Dakpannen |
| Type dak | Zadeldak |
| Oppervlaktes en inhoud | |
|---|---|
| Woonoppervlakte | 67 m² |
| Woonkameroppervlakte | 26,88 m² |
| Keukenoppervlakte | 5,85 m² |
| Inhoud | 236 m³ |
| Indeling | |
|---|---|
| Aantal bouwlagen | 1 |
| Aantal kamers | 3 (waarvan 2 slaapkamers) |
| Aantal badkamers | 1 |
| Locatie | |
|---|---|
| Ligging | Aan rustige weg Dichtbij openbaar vervoer In woonwijk Nabij school Nabij snelweg |
| CV ketel | |
|---|---|
| Warmtebron | Gas |
| Combiketel | Ja |
| Eigendom | Eigendom |
| Uitrusting | |
|---|---|
| Warm water | CV-ketel |
| Verwarmingssysteem | Centrale verwarming |
| Badkamervoorzieningen | Inloopdouche Toilet Wastafel |
| Kadastrale gegevens | |
|---|---|
| Kadastrale aanduiding | Delfshaven I 437 |
| Omvang | Appartementsrecht of complex |
| Eigendomsituatie | Eigen grond |
| Indexnummer | 2 |