Nieuw in verkoop
Beschrijving
Aan de geliefde ’s Gravesandestraat in Schiedam treft u dit verrassend ruime, lichte en uitstekend onderhouden dubbele benedenhuis met een riante, zonnige achtertuin op het zuiden. Een instapklaar appartement met een doorzon woonkamer en 2 slaapkamers, verdeeld over twee woonlagen van ca. 94,7 m².De woning is met zorg afgewerkt en voorzien van alle moderne gemakken. Denk aan een stijlvolle, volledig uitgeruste keuken en een luxe badkamer, uitgevoerd met hoogwaardige materialen en een eigentijdse uitstraling. Hier hoeft u alleen nog maar uw meubels neer te zetten om direct te kunnen genieten.
De ligging is bijzonder aantrekkelijk: rustig wonen, terwijl u zich op korte afstand bevindt van het sfeervolle centrum van Schiedam met een divers aanbod aan winkels, horeca en voorzieningen. Ook het Centrum van Rotterdam is aan te fietsen.
Daarnaast is de bereikbaarheid uitstekend, met openbaar vervoer en uitvalswegen binnen handbereik.
Indeling
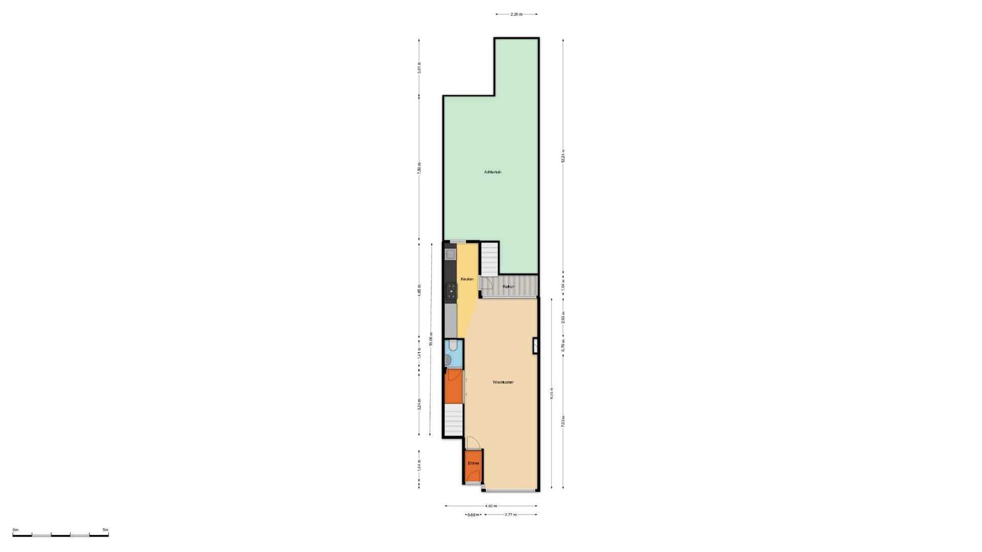
Begane grond
Via de entree met tochtportaal betreedt u de woning. Bij binnenkomst in de woonkamer valt direct de ruimte en lichtinval op. De doorzonwoonkamer is fraai afgewerkt met een houtlook laminaatvloer en strak gestucte wanden en plafonds, wat zorgt voor een moderne en rustige basis. Er is volop plek voor zowel een royale zithoek als een gezellige eethoek.
Aan de achterzijde bevindt zich de open keuken, die naadloos aansluit op de leefruimte. De keuken is uitgevoerd met hoogglans witte kasten en voorzien van diverse inbouwapparatuur, waaronder een gaskookplaat met RVS-afzuigkap, oven, combimagnetron en vaatwasser. De inbouwspots in het plafond geven het geheel een luxe uitstraling. Vanuit de keuken heeft u direct toegang tot de veranda en de tuin.
De grote raampartij aan de achterzijde zorgt voor een prachtig zicht op de tuin en laat veel natuurlijk licht binnen. Via de veranda loopt u zo de diepe, zonnige achtertuin op het zuiden in. De tuin is netjes aangelegd met een combinatie van groen en twee betegelde terrassen, waardoor u op elk moment van de dag een fijne plek in de zon of schaduw kunt vinden.
De stijlvolle openslaande deuren met zwart profiel en veel glas verbinden de woonkamer met de hal. Hier vindt u het toilet en de trap naar het souterrain.
Souterrain
Ook het souterrain is keurig afgewerkt en voelt volwaardig aan. De ruime overloop geeft toegang tot twee comfortabele slaapkamers, de cv-ruimte en de badkamer.
Beide slaapkamers zijn ruim en netjes afgewerkt. De slaapkamer aan de achterzijde profiteert van extra lichtinval dankzij de ramen aan de tuinzijde.
De badkamer is modern en luxe uitgevoerd in grijze tinten, gecombineerd met strak gestucte wanden en een plafond met inbouwspots. De ruimte beschikt over een douche met glazen wand en zwart profiel, een toilet en een wastafelmeubel met zwarte accenten. De zwarte details, waaronder de handdoekenradiator, zorgen voor een stijlvol en harmonieus geheel.
Kortom: een sfeervol, ruim en instapklaar dubbel benedenhuis op een uitstekende locatie, met een heerlijke zonnige tuin. Een ideale woning voor wie comfortabel en rustig wil wonen, met de stad binnen handbereik.
Afmetingen
Begane grond ca. 50,4m²
Souterrain ca. 44,3m²
Totale woonoppervlakte ca. 94,7m²
Tuin ca. 46,7m²
Bijzonderheden
Eigen grond, bouwjaar 1933, kunststof kozijnen met dubbele beglazing, energielabel D (ouder label), verwarming en warm water middels cv-combiketel (Remeha, 2022) actieve VvE, maandelijkse bijdrage ca. € 52,50. Oplevering in overleg.
Bezichtigingsafspraak
Maak direct een bezichtigingsafspraak voor dit ruim, licht en goed onderhouden dubbel benedenhuis met veranda en een riante achtertuin. U bent van harte welkom!
Kenmerken
| Overdracht | |
|---|---|
| Referentienummer | 00602 |
| Vraagprijs | € 350.000,- k.k. |
| Servicekosten | € 52,50 |
| Status | Nieuw in verkoop |
| Aanvaarding | In overleg |
| Aangeboden sinds | Donderdag 23 april 2026 |
| Bouw | |
|---|---|
| Type object | Appartement, dubbel benedenhuis |
| Woonlaag | 1e woonlaag |
| Soort bouw | Bestaande bouw |
| Bouwperiode | 1933 |
| Dakbedekking | Dakpannen |
| Type dak | Platdak |
| Isolatievormen | Dubbel glas Volledig geïsoleerd |
| Oppervlaktes en inhoud | |
|---|---|
| Woonoppervlakte | 94,73 m² |
| Woonkameroppervlakte | 34,83 m² |
| Keukenoppervlakte | 8,71 m² |
| Inhoud | 279 m³ |
| Balkonoppervlakte | 3,07 m² |
| Indeling | |
|---|---|
| Aantal bouwlagen | 1 (en 1 kelder) |
| Aantal kamers | 3 (waarvan 2 slaapkamers) |
| Aantal badkamers | 1 (en 1 apart toilet) |
| Locatie | |
|---|---|
| Ligging | Aan rustige weg Dichtbij openbaar vervoer In woonwijk Nabij school Nabij snelweg |
| Tuin | |
|---|---|
| Type | Achtertuin |
| Hoofdtuin | Ja |
| Oriëntering | Zuiden |
| Staat | Normaal |
| Energieverbruik | |
|---|---|
| Energielabel | D |
| CV ketel | |
|---|---|
| CV ketel | Remeha |
| Warmtebron | Gas |
| Bouwjaar | 2022 |
| Combiketel | Ja |
| Eigendom | Eigendom |
| Uitrusting | |
|---|---|
| Warm water | CV-ketel |
| Verwarmingssysteem | Centrale verwarming |
| Badkamervoorzieningen | Douche Toilet Wastafel Wastafelmeubel |
| Heeft een balkon | Ja |
| Tuin aanwezig | Ja |
| Vereniging van Eigenaren | |
|---|---|
| Ingeschreven bij de KvK | Ja |
| Periodieke bijdrage | Ja |
| Reservefonds | Ja |
| Opstal verzekering | Ja |
| Kadastrale gegevens | |
|---|---|
| Kadastrale aanduiding | Schiedam I 5410 |
| Omvang | Appartementsrecht of complex |
| Eigendomsituatie | Eigen grond |
| Indexnummer | 1 |