Beschrijving

Ruim, licht en goed verzorgd appartement met buitenruimte in het geliefde en gewilde Delfshaven! Deze woning met vier kamers is gelegen op de derde en halve vierde verdieping en beschikt over een balkon en een dakterras met fantastische uitzicht op de stad. Vanuit de erker van de woonkamer kijk je op de prachtige authentieke panden. 

In de straat vind je alles wat de stad te bieden heeft en om de hoek loop je zo het historische Delfshaven binnen met de vele restaurants, terrassen, kunstgalerijen aan de schitterende haven. 

Openbaar vervoer, uitvalswegen en alle stadse voorzieningen binnen handbereik en voor het groen loop je zo o.a. het Dakpark op met daarachter de winkelboulevard. Daarnaast bent u met de fiets of lopend binnen korte tijd in het centrum van Rotterdam. Delfshaven combineert stadse gezelligheid met een historische sfeer.

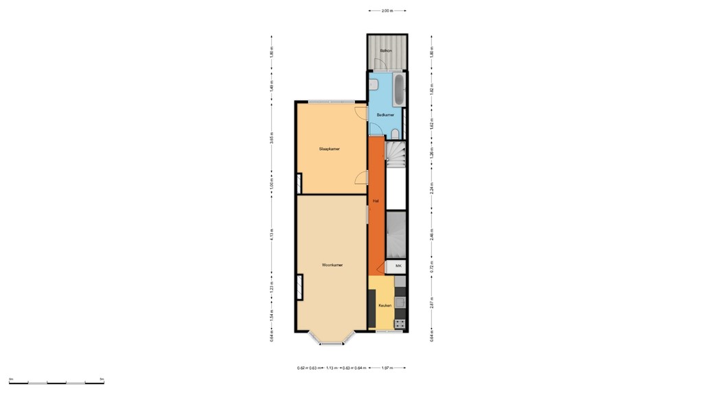
Derde verdieping
Via de hal betreedt u dit fraaie appartement, waar u toegang heeft tot de woonkamer, slaapkamer, badkamer en keuken.

De woonkamer springt direct in het oog door de royale lichtinval. Grote ramen en een charmante erker zorgen voor een aangenaam ruimtelijk gevoel en maken het een heerlijke plek om te ontspannen of gasten te ontvangen. De wanden zijn strak gestukt en de ruimte is afgewerkt met een moderne, onderhoudsvriendelijke laminaatvloer die een warme sfeer uitstraalt.

De keuken bevindt zich aan de voorzijde van de woning. Deze is uitgevoerd in een tijdloze witte kleurstelling met een stijlvol bruin werkblad. 
Dankzij het grote raam geniet u ook hier van veel daglicht. De keuken is voorzien van de nodige inbouwapparatuur.

De slaapkamer is aan de achterzijde gelegen en biedt rust en privacy. Vanuit de kamer kijkt u uit over het groen, wat een bijzonder aangenaam uitzicht geeft. De kamer is netjes afgewerkt en groot genoeg voor een tweepersoonsbed en een royale kledingkast.

De badkamer bevindt zich eveneens aan de achterzijde en biedt toegang tot het balkon. Deze ruimte is praktisch en compleet ingericht met een ligbad voorzien van doucheopstelling, wastafel en toilet. 

Het balkon is gelegen op het noordoosten en vormt een fijne buitenplek waar u in de ochtenduren van de zon kunt genieten.

Vierde verdieping
Op de vierde verdieping vindt u nog twee slaapkamers. De ruime slaapkamer wordt momenteel gebruikt als werk-/studeerruimte en is ideaal voor wie thuis wil werken of studeren. De kleinere slaapkamer is flexibel inzetbaar: perfect als logeerkamer, kinderkamer, inloopkast of tweede werkruimte. Dit geeft u volop mogelijkheden om de verdieping naar eigen wens in te richten.

Daarnaast is er een praktische berging aanwezig, die extra opbergruimte biedt en toegang geeft tot het dakterras.

Dakterras
Het absolute hoogtepunt van deze woning is het royale dakterras. Hier kunt u op elk moment van de dag een plekje in de zon vinden en optimaal genieten van het buitenleven. Of u nu een kop koffie drinkt in de ochtendzon, een boek leest in de middag of ’s avonds vrienden uitnodigt voor een gezellige borrel: dit terras maakt het allemaal mogelijk. Het dakterras is niet meegenomen in de splitsing. De VVE heeft toestemming geven.


Afmetingen 
Derde verdieping ca. 70 m²
Vierde verdieping ca. 35 m²

Totale woonoppervlakte: ca. 105 m²
Balkon: ca. 3,7m²

Bijzonderheden
Eigen grond, bouwjaar 1921, energielabel D (geldig tot 24-11-2030), kunststof kozijnen met dubbele   beglazing en HR-glas, verwarming en warm water via CV-ketel (type Remeha Avanta, 2011), actieve VvE, maandelijkse bijdrage €216,-. Oplevering in overleg.

Bezichtigen?
Maak dan een afspraak om dit mooie appartement te bekijken. U bent van harte welkom!

De gegeven informatie is met zorgvuldigheid opgesteld, aan de juistheid kunnen echter geen rechten worden ontleend. Alle verstrekte informatie moet beschouwd worden als een uitnodiging tot het doen van een aanbod of om in onderhandeling te treden.

Kenmerken