Beschrijving

Op een fantastische locatie aan de geliefde Burgemeester Meineszlaan op steenworp afstand van het bruisende stadscentrum van Rotterdam, ligt deze verrassend ruime (120,5m²) en unieke bovenwoning. Gelegen op de derde én vierde verdieping biedt deze woning een functionele indeling en veel ruimte. 

Rotterdam West is een populaire woonlocatie in de bruisende stad. De woning is gelegen aan de mooie brede straat, waar kinderen spelen op de brede stoep en een gezellige sfeer heerst. Deze woning ligt om de hoek van de statige Heemraadssingel.
Daarnaast zijn er in de directe omgeving zijn de afgelopen jaren veel nieuwe, hippe zaakjes geopend. Ontbijt, lunch, diner en de late borrel; alles is in de directe nabijheid te vinden. De Nieuwe Binnenweg, vierambachtsstraat en de Middellandstraat zijn dichtbij gelegen waardoor alle dagelijkse voorzieningen als supermarkten, winkels, koffiebarretjes (UEB) en leuke cafés/restaurants zoals De Burgemeester, Pugla Tasca, Café Stein en Rijke en de Wit dichtbij zijn. 

De woning is gunstig gelegen ten opzichte van de uitvalswegen (A13 en A20) en het openbaar vervoer (de bus, tramhaltes en het Centraal Station bevinden zich op een steenworp afstand). Metrohalte Coolhaven is ook op loopafstand. Uitvalswegen richting Den Haag, Amsterdam en Utrecht liggen op vijf minuten rijafstand.

De woning beschikt over maar liefst vier kamers, waardoor er volop mogelijkheden zijn voor gezinnen, thuiswerkers of creatieve invullingen zoals een atelier, logeerkamer of hobbyruimte.

Indeling 
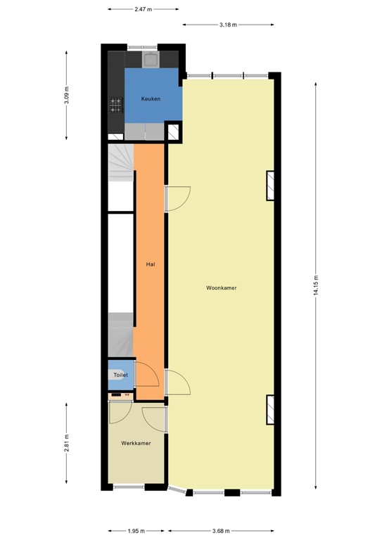
Begane grond 
Houten voordeur met trap naar de woning op de derde verdieping. 

Derde verdieping 
Bij binnenkomst in de hal vind je direct toegang tot het nette toilet en de trap naar de bovenverdieping. Vanuit de hal stap je de ruime, sfeervolle doorzonwoonkamer binnen met een halfopen keuken en een gezellige voor-/zijkamer.

Wat direct opvalt in de woonkamer is de overvloed aan licht dankzij de grote raampartijen aan zowel de voor- als achterzijde. De sierlijke plafondlijsten en de originele marmeren schouw geven de ruimte extra karakter en een warme, klassieke uitstraling. Waar de woonkamer vroeger was opgedeeld in een voor-, tussen- en achterkamer, is het nu één royale leefruimte met een open, ruimtelijk gevoel.

De laminaatvloer en strak gestuukte wanden zorgen voor een moderne basis, terwijl er volop ruimte is voor zowel een comfortabele zithoek als een grote eettafel om gezellig te tafelen met familie of vrienden.

Aan de achterzijde bevindt zich de halfopen keuken, uitgevoerd in tijdloos wit met een houtlook aanrechtblad. De keuken is compleet met diverse inbouwapparatuur, waaronder een 5-pitsgaskookplaat met RVS-afzuigkap, vaatwasser, combi oven/magnetron en koelkast. Vanuit hier kijk je leuk uit over de binnentuinen aan de achterzijde van de woning.

Aan de voorzijde is een werk- of studeerruimte gecreëerd, met een charmant uitzicht over de mooie straat met volwassen bomen, een ideale plek voor wie thuiswerkt of rustig wil lezen.

Vierde verdieping
Via de eigen binnentrap bereik je de vierde verdieping. Op de overloop vind je een praktische bergkast met de opstelling van de CV-ketel, en toegang tot de badkamer en twee sfeervolle slaapkamers.

De badkamer is modern uitgevoerd met een inloopdouche voorzien van regendouche en handdouche, een hangend toilet en een wastafelmeubel. De wanden en vloeren zijn strak afgewerkt met een combinatie van stuc- en tegelwerk.

Beide slaapkamers zijn in dezelfde stijl afgewerkt als de woonkamer: strak gestuukt, licht en warm. De zichtbare houten balken geven de kamers extra karakter en een knusse uitstraling. Beide ruimtes bieden voldoende plaats voor een tweepersoonsbed en kastruimte.

Afmetingen 
Derde verdieping ca. 80m2
Vierde verdieping ca. 40,5m2
Totale woonoppervlakte ca. 120,5m2 

Bent u op zoek naar een woning in de buurt van de stad maar wel in een rustige, brede straat met veel groen en de Heemraadssingel als ‘achtertuin’? Het centrum van Rotterdam is aan te lopen of te fietsen. Winkelen kunt u in de winkelstraten Vierambachtsstraat, 1e Middellandstraat, Mathenesserplein en de Nieuwe Binnenweg, allen nabijgelegen. 

Bijzonderheden 
Eigen grond, bouwjaar 1915, Energielabel D, volledig voorzien van dubbele beglazing, verwarming en warm water middels CV-ketel (Remeha Tzerra M 28c Plus). Actieve VVE met een bijdrage van € 87,71 per maand. Oplevering in overleg. 

Bezichtigingsafspraak 
Maak direct een afspraak om dit fantastische appartement op de 3e en 4e verdieping van een statig herenhuis uit 1915 te bezichtigen! 

De gegeven informatie is met zorgvuldigheid opgesteld, aan de juistheid kunnen echter geen rechten worden ontleend. Alle verstrekte informatie moet beschouwd worden als een uitnodiging tot het doen van een aanbod of om in onderhandeling te treden.

Kenmerken