Beschrijving

Deze bijzondere woning, verdeeld over de tweede en derde verdieping, biedt maar liefst zes kamers en is een uitstekende kans om jouw woondroom te realiseren. Met een royale hoeveelheid aan vierkante meters en een functionele indeling zijn de mogelijkheden eindeloos: denk aan ruime slaapkamers, een thuiskantoor of een lichte woonkamer met voldoende ruimte om te ontspannen. Er is toestemming vanuit de VvE om een dakterras te realiseren!
Er is hier een parel van te maken op een perfecte locatie! Energielabel C.

De ligging van deze woning is uitstekend te noemen. West bruist!
In een straat met mooie oude gevels en op loopafstand van de prachtige, groene Heemraadssingel. Ook het nieuwe Essenburgpark en het Roel Lagerakpark, waar in de zomer leuke festivals plaatsvinden is dichtbij.

Op loopafstand bevinden zich leuke winkels, (sport)scholen, maar ook café’s en restaurants, waaronder “De Burgemeester”, “Juffrouw van Zanten” en “Portugalia Tasca”. Keuze te over! 

Met de fiets of tram bereik je het bruisende stadscentrum en Centraal Station binnen 5 minuten. Door de gunstige ligging zijn ook de uitvalswegen (A13, A20) goed en snel te bereiken.

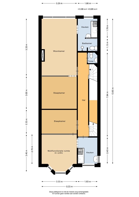
Afmetingen 
Tweede verdieping ca. 72,4m2
Derde verdieping ca. 31,2 m²

Totale woonoppervlakte 104 m²
Balkon ca. 1 m²

Deze woning biedt de kans om het helemaal naar jouw smaak in te richten en er een prachtige thuisbasis van te maken.

Bijzonderheden 
Eigen grond, bouwjaar 1916, energielabel C (geldig tot 23-01-2035), volledig voorzien van kunststof kozijnen met dubbele beglazing verwarming en warm water middels CV-ketel (Vaillant Eco, 2015). Actieve VvE met een maandelijkse bijdrage van €117,68. Oplevering in overleg. 

Bezichtigingsafspraak 
Zie jij jezelf hier al wonen? Mis deze kans niet en plan vandaag nog een bezichtiging in voor deze grote bovenwoning!

De gegeven informatie is met zorgvuldigheid opgesteld, aan de juistheid kunnen echter geen rechten worden ontleend. Alle verstrekte informatie moet beschouwd worden als een uitnodiging tot het doen van een aanbod of om in onderhandeling te treden.

Kenmerken